Оптические муфты Tyco/Electronics

FOSC-400

FOSC-400 Волоконно-Оптическая Соединительная Муфта

Название FOSC является синонимом высокого качества герметизации, организации волокон, легкости использования и гибкости конструкции. Первая модификация муфты FOSC 100 была представлена в 1986 г., и с тех пор муфты FOSC лидируют на рынке. Муфты FOSC не являются модификацией муфт для медножильного кабеля, а проектировались специально для оптики. Отличия муфт FOSC от других очевидны. Муфты FOSC 400 объединяют проверенную систему организации волокон муфт FOSC 100 с новой системой герметизации. Для упрощения монтажа и вскрытия в муфте предусмотрена механическая герметизация корпуса с основанием. Для герметизации кабельных вводов используется новый тип термоусаживаемых трубок с термоплавким клеем, для монтажа которых применяется термофен. Использование одних и тех же материалов, технологий и комплектующих позволяет упростить обучение, уменьшить складские запасы и повысить эффективность. Выпускается три размера волоконно-оптических муфт FOSC 400: FOSC 400 A, FOSC 400 В и FOSC 400 D. Все размеры разработаны для любой конструкции кабеля (модульная, с центральным модулем, с профилированным сердечником, ленточная), для любого месторасположения муфты (подвеска на столбе или опоре, в кабельном колодце, непосредственно в грунте), и для различных конфигураций (прямое сращивание, ответвление, разветвление и ремонт).

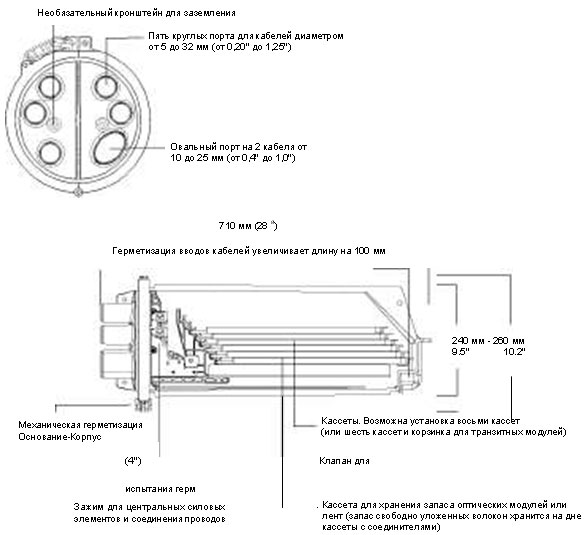
FOSC-400 A4

Муфта FOSC-400 A4

Муфта FOSC 400 A4 самая маленькая из муфт FOSC 400. Она предназначена для соединения кабелей с малым количеством волокон и для ответвительных соединений. В ответвительных соединениях большинство волокон в кабеле «проходят транзитом» через муфту, и только несколько волокон выделяются из кабеля и подаются в здание или в Оптический Сетевой Модуль (ОСМ). Муфта FOSC 400 А4 полностью готова для хранения «транзитных» модулей. Имеются варианты лотков для хранения свободных транзитных волокон и лент. Как и во всех муфтах FOSC 400, емкость кассеты для свободного хранения волокон и число сварок, на которое рассчитана муфта FOSC 400 А4, зависят от нескольких факторов, таких как конструкция кабеля, тип соединения и длина свободно хранимого волокна.

FOSC-400 A4

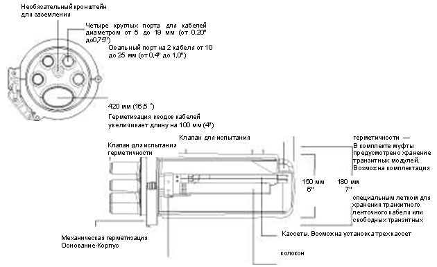
FOSC-400 B2 и FOSC-400 B4

Муфта FOSC 400 B2 и FOSC 400 В4

Муфты FOSC 400 В2 и FOSC 400 В4 идентичны за исключением конфигураций оконечных кабельных портов. Дополнительно к большому овальному порту для основного кабеля, муфта В2 имеет два больших круглых порта для ответвительных кабельных соединений, а муфта В4 имеет четыре круглых порта меньшего диаметра. Система герметизации кабелей муфты FOSC 400 очень гибкая. Например, четыре маленьких кабеля могут быть заделаны в двух круглых портах муфты В2 используя разветвительныи зажим.

FOSC-400 B2 и FOSC-400 B4

FOSC-400 D5

Муфта FOSC 400 D5

Муфта FOSC 400 D5 самая большая из муфт FOSC 400. Она имеет один овальный порт и пять больших круглых портов и имеет вводные порты для семи кабелей (или до двенадцати кабелей с использованием разветвительного зажима). Муфта расчитана на 288 одиночных механических, 576 одиночных сварных, или 864 многоволоконных (12) сварных соединений волокон. Волоконная лента может храниться непосредственно на кассетах или в универсальном лотке, который может использоваться также для хранения транзитных модулей или транзитных свободных волокон.

FOSC-400 D5

FOSC-OC

Широкополосные соединители / разветвители в лотках FOSC

Одномодовые широкополосные соединители / разветвители - это разветвительное устройство для разделения и соединения светового луча. Имеется широкий спектр модификаций и размеров этих устройств. Эти устройства встроены в лотки для сращивания оптоволокна FOSC. Это обеспечивает их простую интеграцию в муфты, настенные боксы или оптические распределительные стойки.

Преимущества:

  • Надежная работа
  • Низкие оптические потери
  • Низкая чувствительность к поляризации
  • Великолепные характеристики к механическим нагрузкам
    и характеристикам влияния окружающей среды
  • Быстрый монтаж и ввод в эксплуатацию

Применения:

  • Для соединения и разделения светового сигнала
  • На станциях, узловых пунтах
  • Для локальных сетей
  • На столбах
  • Мониторинга сети

Подробности в файле Word

FOSC-400 FR

FOSC-400 FR Огнеупорная Волоконно-Оптическая Соединительная Муфта

Огнеупорная волокнно-оптическая соединительная муфта FOSC-400 FR сделана из стойкого к огню материала и используется в кабельных шахтах и зданиях. Все муфты FOSC 400 имеют простую в использовании механическую систему герметизации корпуса с основанием. Кабельные порты герметизируются термоусаживаемыми трубками и устанавливаются при помощи нагрева. Один размер кабельной герметизации может использоваться на других размерах и типах кабеля. Новые кабели могут быть введены без воздействия на существующие кабели и/или сростки. FOSC 400 действительно универсальная и надежная платформа для любого волоконного соединения кабеля, как на внешней сети, так и внутри помещений.

Подробности в файле Word

Организация волокон волоконно-оптической муфты FOSC-400

Для соединения и укладки волокон муфты FOSC 400 А4, В2 и В4 могут иметь два различных типа держателя сростков. Универсальный держатель сростков подходит для сварных сростков и наиболее распространенных механических соединителей. До 8 сростков может вместить каждая кассета типа А и 12 сростков кассета типа В. Использование второго типа держателя сростков и гильз длиной 45 мм (SMOUV-1120-02) удваивает емкость кассеты: 16 сварных сростков для кассеты S16 муфты А и 24 сварных сростка для кассеты S24 муфты В2 и В4. Имеется также кассета S24 на 24 сварных сростка для муфты типа А. Кассеты для соединения и укладки волокон в FOSC 400 D5 содержат взаимозаменяемые соединительные модули.

В каждой "D" кассете устанавливается шесть соединительных модулей. Стандартный SM6 соединительный модуль вмещает 6 одиночных сварных, механических или многоволоконных сварных соединений. Имеются также соединительные модули для многоволоконных механических соединителей и одиночных сварных соединений высокой плотности. Эти соединительные модули могут быть установлены также в специальных кассетах для муфты типа В. До двух соединительных модулей может быть установлено в одной специальной кассете для муфты типа В. Эти специальные кассеты для муфты типа В могут легко адаптироваться в дальнейшем для размещения соединителей, сплиттеров и т.д., используя модули другой конструкции.

Во всех муфтах FOSC 400 кассеты имеют откидную конструкцию, что обеспечивает свободный доступ к любому волокну на любой кассете без воздействия на другие волокна, на запас транзитных модулей. Такая конструкция исключает внесение потерь в оптический сигнал. Кроме того, любое волокно может быть соединено с любым другим волокном на другой кассете при помощи межкассетной соединительной системы. Современные высокоскоростные волоконно-оптические сети требуют максимальной гибкости и надежности при изменении конфигурации сети.

 

Максимальное

количество сростков

в муфте

Емкость кассет для

хранения транзитных волокон

Муфта

Одиночная сварка

Одиночное         Массовое механическое    механическое соединение       соединение

Оптические модули

Свободная укладка оптических волокон

12-волоконная лента

FOSC 400 А4 FOSC 400 В2, В4 FOSC 400 D5

72(1) 144 768

24(2) 48 288

24 288 864

8 6 18

96 96 96

6 24 72

(1)Только с рекомендуемым с устройством защиты места сварки SMOUV длиной 45 мм фирмы Tyco Electronics
(2)Меняется в зависимости от типа соединителя. Емкость приведена для наиболее широко используемых
механических соединителей

 

FOSC-500AA Проходная муфта

Проходная муфта FOSC-500AA обеспечивает полную защиту кабелей от воздействия окружающей среды и предназначена для использования на кабелях, которые подвешиваются, прокладываются в кабельной канализации или непосредственно в грунт. Данная муфта является многоразовой, она не требует использования открытого огня и поставляется с комплектом кассет и элементов для крепления кабелей. Муфта может использоваться как ответвительная, разветвительная или проходная на участках сети с невысоким количеством волокон в кабеле.
Характеристики муфты FOSC-500AA:

  • Муфта FOSC-500AA - это компактная и удобная в
    использовании проходная муфта.
  • Защелки и шарнирное соединение половин корпуса
    позволяют проводить вскрытие и повторный монтаж
    муфты.
  • Корпус имеет по 2 ввода с каждой стороны.
  • Муфта обеспечивает надежную герметизацию
    кабелей.
  • Герметизация корпуса осуществляется на основе
    гелевой технологии.

Муфта может использоваться при работе с кабелями
большинства существующих конструкций.

Размеры в мм

 

 

 

Длина без деталей крепления

422

L

Длина с деталями крепления

472

Н
W Емкость (количество волокон)

Высота Ширина Количество кассет

62 125 1

 

Количество сростков

24

Вводы

Количество вводов

2+2

 

Диаметр кабелей

5- 15 мм

Тип кассеты
S24 на 24 сростка в защитных трубках типа SMOUV (45 мм)
А24 на 24 сростка в защитных трубках типа ANT
L24 на 24 сростка в защитных трубках типа SMOUV (60 мм)
Тип кабеля
LT со свободным размещением волокон в трубке СС с центральным сердечником SC с фигурным сердечником

Клапан проверки герметичности
V    есть N    нет
Болт вывода заземления
G    есть N    нет

FOSC-500В Проходная муфта

Проходная муфта FOSC-500B обеспечивает полную защиту кабеля от воздействия окружающей среды и предназначена для использования на магистралях. Данная муфта является многоразовой, не требует использования открытого огня и поставляется с комплектом кассет и элементов для крепления кабеля.
Характеристики и функции муфты FOSC-500B:

  • Проходной дизайн муфты.
  • Может использоваться как проходная, ремонтная,
    разветвительная.
  • Термопластиковый корпус состоит из 2 половин,
    герметизирующихся с помощью кольцевого резинового
    уплотнения.
  • Корпус имеет 2 ввода с одной стороны и 4 с другой.
  • Герметизация кабеля проводится с помощью гелевых
    лент.
  • Механическое крепление кабеля осуществляется
    посредством крепежных фиксирующих лент.
  • Металлический корпус содержит комплекты для
    крепления кабеля и кассет FOSC.
  • Вскрытие и повторный монтаж муфты технологически
    проводится очень просто.

Размеры и емкость

 

Размеры (мм)

 

Длина (без деталей крепления)

636

Длина (с деталями крепления)

648

Внутренний диаметр

100

Внешняя ширина

160

Емкость (количество волокон)

 

Количество кассет FOSC

6

Кассета на 24 сростка

144

Кассета на 16 сростков

96

Вводы

 

Количество вводов

2+4

Диаметр кабеля

7 - 40 мм

 

 

Тип кассеты
S16   на 16 сварных сростка
S24   на 24 сварных сростка
А16  на 16 протекторов ANT
А24  на 24 протекторов ANT
NNN  без кассет
Количество кассет в комплекте
0....6 укажите необходимое количество (если муфта используется для хранения волокна или как разветвительная - макс. 4 кассеты

Клапан проверки герметичности
V    есть N    нет
Болт заземления
G    есть N    нет
I     как соединительная
(проходная, ремонтная) Т    как разветвительная S    для хранения транзитных оптических модулей

FOSC-600Соединительная механическая муфта

Муфты FOSC 600 С и D - это больше, чем простые волокно-оптические соединительные муфты. Это прочные и универсальные платформы, которые могут быть смонтированы в любой точке оптоволоконной кабельной сети для множества функций, сращивания любого типа и размера кабеля, размещения оконцованных распределительных, демаркационных точек и развертывания оптических пассивных компонентов. Система герметизации муфт FOSC 600 основывается на доказанной надежности муфты FOSC 400 и особенностей универсальной и популярной технологии Гелевой Герметизации для подключаемых кабелей и уникальной защелкивающейся системой для быстрого открытия и закрытия корпуса.
Другие характеристики и особенности:

  • Разводка до шестнадцати кабельных портов.
  • Диаметры кабелей до 35 мм и емкость
    до 1728 волокон.
  • Тупиковая и проходная конфигурации.
  • Все внутренние элементы могут быть удалены для
    реконфигурации.
  • В зависимости от потребности корзина хранения
    оптических модулей, поставляемая со всеми
    муфтами, может быть удлинена или
    перепозиционирована вертикально.
Хранение незатянутых ленточных волокон
возможно в новом лотке для массовового
сращивания.

FOSC-OPGW Муфта для монтажа на воздушных линиях электропередачи

Муфта FOSC-OPGW- это тупиковая металлическая муфта, специально разработанная для использования с оптоволоконным кабелем, монтируемым на воздушных линиях электропередачи. Муфта разработана для надземного использования; она может быть закреплена на высоковольтных опорах, столбах, стенах или других конструкциях. Муфта может использоваться для герметизации ответвительных и разветвительных сростков, внешних узлов, распределительных участков сети.
Функции и характеристики муфты FOSC- OPGW:

  • Муфта является тупиковой.
  • Монтажная рама изготовлена из оцинкованной стали и содержит в себе термопластиковый корпус и основание, а также зажимы для OPGW кабеля.
  • Комплект для монтажа на столбе позволяет установку муфты на поперечных стойках высоковольтных вышек без необходимости сверления дыр в металлической конструкции.
  • Имеется также версия со стальной защитой от огнестрельного оружия.
  • Муфта позволяет подключение и герметизацию до:
    • 2 OPGW кабелей.
    • 2 ADSS или стандартных оптиковолоконных кабелей.
  • Герметизация кабельного ввода при помощи термоусаживаемых материалов.

Внутри муфты могут устанавливаться кассеты FOSC, петельная конструкция которых позволяет доступ к любому сростку без воздействия других лотков.

Размеры и емкость

 

 

 

Размер муфты

FOSC- 400 А4

 

FOSC- 400 В4

Размеры (мм)
Ширина х глубина Длина без защитного корпуса Длина с защитным корпусом

202 х 240 605 730

 

202 х 240 715 730

Емкость сращивания (количество волокон)
Количество лотков * Одиночное волокно**

Сростки на краях лотка
3 72

Сростки в модулях
2 48

4(6) 96(144)

Кабельные порты
4 кабельных порта с диаметрами кабелей

от 5 до 19 мм

 

от 5 до 19 мм

* в версии В может быть уложено 5 или 6 лотков. Для этого требуется предварительно заказать такую муфту, так как для укладки 5 или 6 лотков в стандартной муфте, требуется корректировка конструкции.
** емкость сращивания рассчитана с использованием 45 мм протетора сростка.

FIST-MCO Муфта FIST с металлическим корпусом

Муфта FIST-MCO - это тупиковая металлическая муфта, специально разработанная для использования с оптоволоконным кабелем, монтируемым на воздушных линиях электропередачи. Муфта разработана для надземного использования,она может быть закреплена на высоковольтных опорах, столбах, стенах или других конструкциях.
Муфта FIST-MCO имеет много различных функций и возможностей.

  • Муфта является тупиковой.
  • Основание и корпус изготовлены из некоррозирующего алюминиевого сплава, обладающего низкой влаго/паропроницаемостью и механической прочностью.
  • В основании муфта имеет 6 круглых портов ввода/вывода кабеля.
  • Герметизация кабеля производится при помощи термоусаживаемых материалов.
  • Одна модель может быть использована как соединительная или разветвительная, узловым или распределительным пунктом.
  • Две предварительно смонтированные, расположенные задними стенками друг к другу платы FAS, предоставляют базу для монтирования на нее комбинаций SOSA (модульная сборка кассет) и/или SASA (модульная сборка кассет с оптическими разветвителями).

Имеется также широкий спектр аксессуаров для монтажа.

Подробности в файле Word

FOSC-DMARC Демаркационная муфта с функциями линейной кроссировки

Муфта FOSC-DMARC - это герметичная муфта, которая обеспечивает полную защиту от воздействия окружающей среды, систему организации волокон с функциями сращивания и кроссирования на оптоволоконной кабельной сети. Спроектированная на принципах размещения одиночного элемента (модуля кабеля) FOSC-DMARC является идеальным гибким демаркационным пунктом для подключения до 4 пользовательских ответвлений, каждый по 12 волокон.
Дополнительные пользователи / клиенты могут быть подсоединены на другой стороне сети без воздействия на других, уже подключенных, пользователей / клиентов.
FOSC-DMARC имеет следующие функции и особенности:

  • Тупиковый дизайн.
  • Основание и корпус сделаны из термопластического материала и герметизируются хомутом с кольцевой прокладкой.
  • На основании имеется 5 круглых портов ввода / вывода ответвительных кабелей и 1 овальный порт для 2 кабелей.
  • Герметизация кабельного ввода производится термоусаживаемым материалом.
  • Области сращивания и кроссировки отделены 2-мя петельными дверцами с индивидуальными встроенными замками.
  • Сторона пользователей: панель обеспечивающая разгрузку при заделке пигтейла (48 пигтейлов или для полной кроссировки - версия 48 коннекторная панель кроссировки). Магистральная сторона: 48 коннекторная панель кроссировки, подходящая для всех типов адаптеров коннекторов.
  • Место хранения запаса пигтейла или патчкорда.
  • Установленные на заводе транспортировочные трубки позволяют быстрый и легкий монтаж.
  • Возможен предварительный заводской монтаж пигтейлов как на магистральной стороне, так и/или на стороне пользователей.
В стандартной комплектации муфты поставляются с установленным портом для заземления и клапаном проверки герметичности.

FIST-GC02 Универсальная муфта

Универсальная муфта FIST-GC02- это герметичная и защищенная от воздеистия окружающей среды система оптиковолоконного управления, которая обеспечивает функции сращивания и интеграции пассивного компонента во внешней сети. FIST-GCO2 имеет следующие функции и особенности:

  • Муфта является тупиковой.
  • Основание и корпус герметизируются механически, хомутом с кольцевой прокладкой.
  • Имеется 6 или 16 круглых портов входа/выхода для ответвительных кабелей и 1 овальный порт для проходного кабеля.
  • Профиль UMS (Универсальная Монтажная Панель), на который монтируются различные комбинации
    модулей SOSA2 (Модульная сборка кассет) и/или SASA2 (Модульная сборка кассет с оптическими
    разветвителями).
  • Совместима с большинством существующих конструкций кабеля, такими как, кабель с центральным сердечником, со свободным
    размещением волокон в трубке, ленточным кабелем.
  • Неразрезанные волокна могут быть уложены, как одиночными цепями в лотках и/или как одиночные элементы в лотке между профилями.
  • Имеются корзинки для хранения запаса волокон модуля кабеля с центральным сердечником.

FIST-GC0G2 Универсальная муфта FIST с гелевой герметизацией

Универсальная муфта FIST-GCOG2- это герметичная и защищенная от воздеистия окружающей среды полностью механическая система оптиковолоконного управления, которая обеспечивает функции сращивания и интеграции пассивного компонента во внешней сети.
FIST-GCOG2 имеет следующие функции и особенности:

  • Муфта является тупиковой.
  • Основание и корпус герметизируются механически, хомутом с кольцевой прокладкой.
  • 6 круглых кабельных портов герметизируются блоком с гелезаполненными профилями. При необходимости этот блок может быть открыт и закрыт многократно, без удаления или замены геля.
  • Профиль UMS (Универсальная Монтажная Панель), на который монтируются различные комбинаций модулей SOSA2 (Модульная сборка кассет) и/или SASA2 (Модульная сборка кассет с оптическими разветвителями.
  • Совместима с большинством существующих конструкций кабеля, такими как, кабель с центральным сердечником, со свободным размещением волокон в трубке, ленточным кабелем.
  • Неразрезанные волокна могут быть уложены, как одиночными цепями в лотках и/или как одиночные элементы в лотке между профилями.
  • Имеются корзинки для хранения запаса волокон модуля кабеля с центральным сердечником.

FIST-SC02 Муфта для укладки в городской канализации

Муфта FIST-SCO2 для укладки в городской канализации
- это герметичная и защищенная от воздейстия
окружающей среды система организации оптоволокна,
которая обеспечивает функции сращивания и интеграции
пассивного компонента во внешней сети. Плоская
металлическая муфта специально разработана для укладки
в системах городской канализации и характеризуется
повышенной стойкостью к очень агрессивной окружающей
среде.
FIST-SCO2 имеет следующие функции и особенности:

  • Муфта является тупиковой.
  • Основание и корпус сделаны из нержавеющей стали AISI 316L и герметизируются кольцевой прокладкой с контролируемой компрессией.
  • Основание и корпус имеют фиксирующие отверстия для установки муфты на стене.
  • Имеется 6 или 10 круглых портов входа/выхода для ответвительных кабелей и 1 овальный порт для проходного (несрезного) кабеля.
  • Герметизация ввода кабеля производится при помощи термоусадки.
  • В основании может быть установлен болт для заземления и клапан для подачи давления.
  • Профиль UMS (Универсальная Монтажная Панель), на который монтируются различные комбинаций модулей SOSA2 (Модульная сборка кассет) и/или SASA2 (Модульная сборка кассет с оптическими разветвителями.
  • Система FIST MK2 позволяет организацию волокон как для одиночной цепи , так и для одиночного
    элемента (модуля кабеля).
  • Неразрезанные волокна могут быть уложены в запас как на кассетах SC-для одиночной цепи, так и на кассетах SE-для одиночного элемента или модулях
    кабеля на обратной стороне профиля UMS.
  • FIST-SCO2 с 10 портами специально разработана для кабеля со свободным размещением волокон в трубке, тогда как муфта FIST-SCO2 с 6 портами совместима с большинством существующих конструкций кабеля.

Муфта FOSC с металлическим корпусом

Муфта FOSС-МСО - это тупиковая металлическая муфта, специально разработанная для использования с оптоволоконным кабелем, монтируемым на воздушных линиях электропередачи.

Муфта разработана для надземного использования; она может быть закреплена на высоковольтных опорах, столбах, стенах или других конструкциях. Муфта может использоваться для герметизации ответвительных и разветвительных сростков, внешних узлов, распределительных участков сети.

Функции и характеристики муфты FOSС-МСО:

  • Муфта является тупиковой.
  • Основание и корпус изготовлены из некоррозирующего алюминиевого сплава, обладающего низкой влаго/паропроницаемостью и высокой механической прочностью.
  • Муфта имеет 4 круглых ввода.
  • Муфта обеспечивает герметизацию как проводов заземления, так и оптоволоконных кабелей.
  • Герметизация кабеля проводится с помощью термоусаживаемых материалов.
  • Встроенная в корпус корзина вмещает до 4 кассет FOSС.

По требованию заказчика может быть изготовлена муфта практически любой конфигурации, содержащая дополнительную корзину и кассеты FOSС.

Информация предоставлена ООО "Трансэнерго ТД"

Продолжая пользоваться сайтом, Вы соглашаетесь на обработку файлов cookie в соответствии с пользовательским соглашением и политикой конфиденциальности
Нужен кабель? Оформи заявку бесплатно